


+5Under construction and due for completion in early 2026, this brand-new industrial building is part of a premium development by reputable developer Jomac, located just off Hobsonville Road in the high-growth Hobsonville precinct.
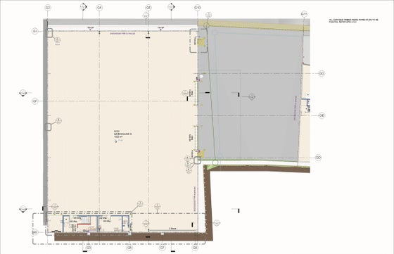
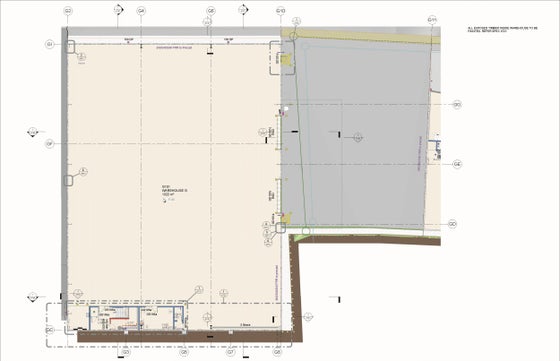
Built to an exceptional standard, this well-sized industrial facility offers a total floor area of approximately 1,758sqm, providing modern, efficient space ideal for a wide range of businesses.
The warehouse features high-stud, clear-span space, complemented by a fully air-conditioned office finished to a contemporary specification. The property also benefits from its own dedicated yard area and on-site car parking, ensuring excellent operational functionality.
This is a rare opportunity to secure a premium new-build industrial premises in one of Auckland's most sought-after commercial locations.
Area breakdowns:
• Warehouse: 1,345sqm
• Office: 413sqm
• Canopy: 176sqm
• Yard: 643sqm (more or less)
• Car parks: 15
Contact the agents today to discuss this exceptional property, arrange a site inspection, or explore additional options within the development that may also suit your business



Our agents are experts on all things in the property market, if you haven't found what you're looking for, please enquire with the listing agent now to have all of your property questions answered.
Contact us and have your questions answered.